Lopes Prime - Imóveis de Alto Padrão

Terreno Para Venda, Tucuruvi, São Paulo - 7000 M2 | Ref: 1004809
TUCURUVI
Avenida Nova Cantareira Terreno
Venda R$ 21.000.000,00
7000 Área Útil
7000 Área Total
R$ 16.000,00 IPTU
7000 Área Útil
7000 Área Total
R$ 16.000,00 IPTU

Ver Selecionados


Descrição do imóvel

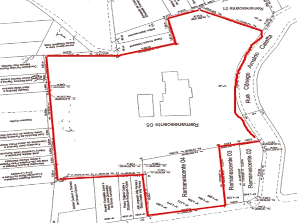
Terreno à venda no Tucuruvi.
Com 7.000m² de área total, contem 1 predinho de 2 andares com 7 lojas e 10 salas comerciais, além de 2 sobrados, que ocupam 2.000m².
O zoneamento da área é ZEM podendo ser contruído 1x, com gabarito de 10 metros. Uma exclente oportunidade para incorporação de conjunto de prédios baixos ou casas.



Detalhes do imóvel

Aceita Pet


Financiamento

Fale com um corretor Preencha os campos com seus dados e um de nossos corretores entrará em contato.
Contate-me por:
fechar

Fale com um corretor